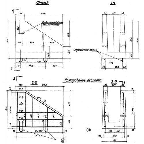
Оголовок тип I

Чертеж изделия:
Характеристики изделия:
ПараметрЗначение
длина770 мм
ширина392 мм
высота600 мм
масса180 кг
нормативный документАльбом № 984

Оголовок междушпального лотка ТИП 1  изготавливается согласно "Альбом водоотводных устройств на станциях" инв.№ 984

ОПИСАНИЕ И ОБЛАСТЬ ПРИМЕНЕНИЯ

Оголовки лотков МШЛ 0.5 тип I изготавливаются прямоугольного сечения шириной 392 мм.. и имеют усеченный вид. Блоки оголовков лотков производят длиной 0,6 м. Вес блока оголовка лотка МШЛ 0,5 составляет 0,180 т. Блоки оголовков лотков изготавливаются из плотного гидротехнического бетона марки М300. В стенках лотков предусмотрены дренажные отверстия диаметром 3 см.

Монтируются оголовки лотков на концевых участках сборных конструкций лотков междушпальных МШЛ 0.5 для отвода воды от централизованных стрелок и вдоль бортов пассажирских платформ.