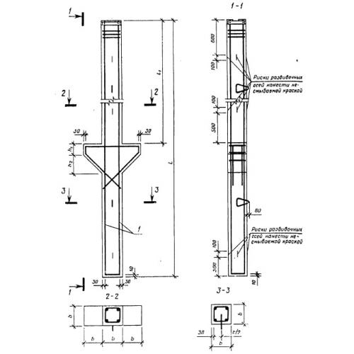
1СД 65

Чертеж изделия:
Характеристики изделия:
ПараметрЗначение
длина6500 мм
ширина300 мм
высота300 мм
масса1600 кг
нормативный документГОСТ 19804.7-83

1СД 65  Сваи-колонны двухконсольные ГОСТ 19804.7-83.