ПП 15.5 парапетные плиты
Характеристики изделия:
| Параметр | Значение |
|---|---|
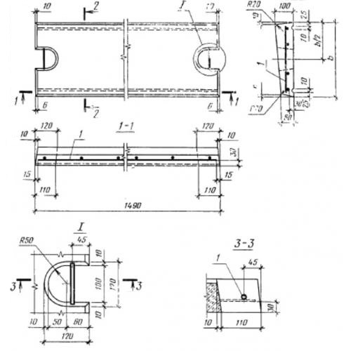
| длина | 1490 мм |
| ширина | 500 мм |
| высота | 100 мм |
| масса | 123 кг |
| нормативный документ | ГОСТ 6786-80 |
Цена:
Рассчитать стоимостьПП 15.5 Плиты парапетные ГОСТ 6786-80.
| Параметр | Значение |
|---|---|
| длина | 1490 мм |
| ширина | 500 мм |
| высота | 100 мм |
| масса | 123 кг |
| нормативный документ | ГОСТ 6786-80 |
ПП 15.5 Плиты парапетные ГОСТ 6786-80.
