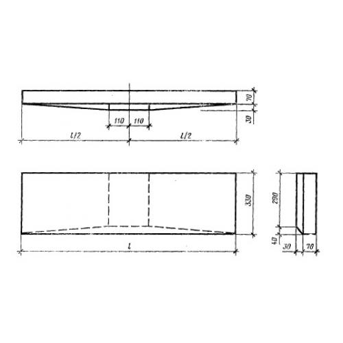
ЛСС 15 ступени плоские

Чертеж изделия:
Характеристики изделия:
ПараметрЗначение
длина1500 мм
ширина330 мм
высота100 мм
масса108 кг
нормативный документГОСТ 8717.0-84

ЛСС 15  Ступени плоские для сквозных лестничных маршей ГОСТ 8717.0-84.