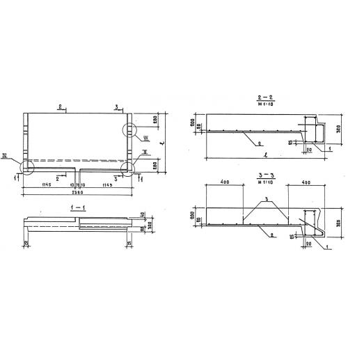
1ЛП 24.13 лестничные площадки плоские

Чертеж изделия:
Характеристики изделия:
ПараметрЗначение
длина2380 мм
ширина1300 мм
высота320 мм
масса1590 кг
нормативный документГОСТ 9818-85

1ЛП 24.13  Лестничные площадки плоские ГОСТ 9818-85.