ВП 34

Чертеж изделия:
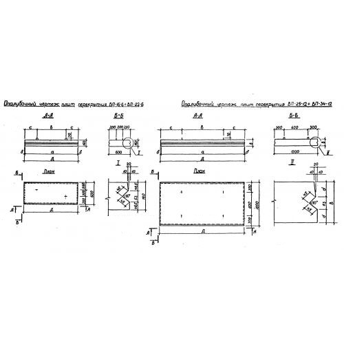
Характеристики изделия:
ПараметрЗначение
длина3430 мм
ширина1200 мм
высота260 мм
масса2600 кг
нормативный документАльбом РК 2303-86

ВП 34  Верхняя плита (плита перекрытия)  Альбом РК 2303-86.