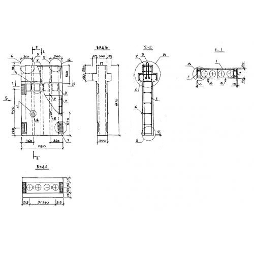
ВД 20-12-30 вентиляционные блоки

Чертеж изделия:
Характеристики изделия:
ПараметрЗначение
длина1180 мм
ширина500 мм
высота1970 мм
масса1325 кг
нормативный документСерия 1.034.1-1/90

ВД 20-12-30  Вентблоки-диафрагмы жесткости Серия 1.034.1-1/90.