ПРС 68.15 плиты сантехнические
Характеристики изделия:
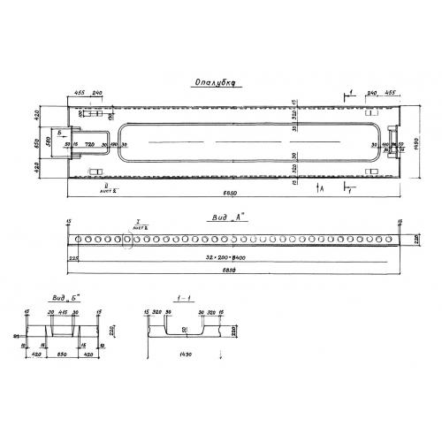
| Параметр | Значение |
|---|---|
| длина | 6850 мм |
| ширина | 1490 мм |
| высота | 220 мм |
| масса | 3625 кг |
| нормативный документ | Серия 1.041.1-3 |
Цена:
Рассчитать стоимостьПРС 68.15 Плиты ребристые сантехнические Серия 1.041.1-3.