ЛСС 24
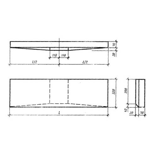
Характеристики изделия:
| Параметр | Значение |
|---|---|
| длина | 2380 мм |
| ширина | 330 мм |
| высота | 100 мм |
| вес | 185 кг |
| серия | 1.055.1-1 |
Цена:
Рассчитать стоимостьЛСС 24 Ступени плоские для сквозных лестничных маршей по серии 1.055.1-1.
| Параметр | Значение |
|---|---|
| длина | 2380 мм |
| ширина | 330 мм |
| высота | 100 мм |
| вес | 185 кг |
| серия | 1.055.1-1 |
ЛСС 24 Ступени плоские для сквозных лестничных маршей по серии 1.055.1-1.
