ПР 72.15

Чертеж изделия:
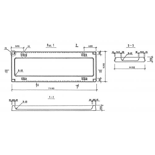
Характеристики изделия:
ПараметрЗначение
длина7180 мм
ширина1490 мм
высота220 мм
масса3095 кг
нормативный документСерия 1.090.1-1

ПР 72.15  Плиты перекрытия ребристые Серия 1.090.1-1.