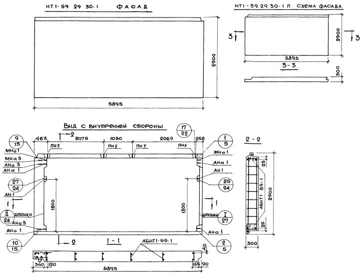
НТ1-59.29.30-1л

Чертеж изделия:
Характеристики изделия:
ПараметрЗначение
Длина5895 мм
Ширина300 мм
Высота2900 мм
Масса6950 кг
Нормативный документСерия 1.132-1

НТ1-59.29.30-1л   Наружная стеновая панель торцевая по Серии 1.132-1.