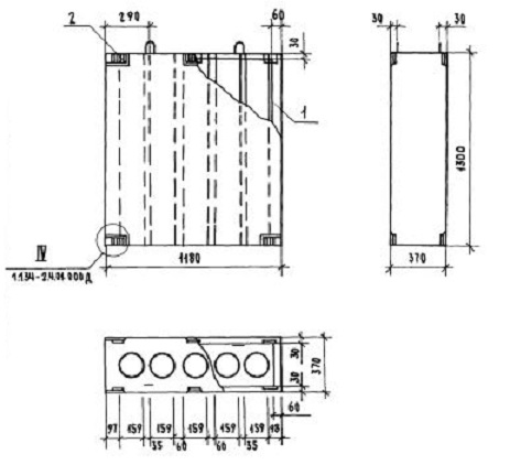
ВБН-12.13.4-п

Чертеж изделия:
Характеристики изделия:
ПараметрЗначение
Длина1180 мм
Ширина370 мм
Высота1300 мм
Масса530 кг
Нормативный документСерия 1.134-2

Блоки внутренних стен толщиной 16 см и вентялиционные блоки для жилых зданий высотой 1-4 этажа и общественных зданий высотой 1-3 этажа по Серии 1.134-2.

ВБН-12.13.4-п  Вентиляционный блок наружный.