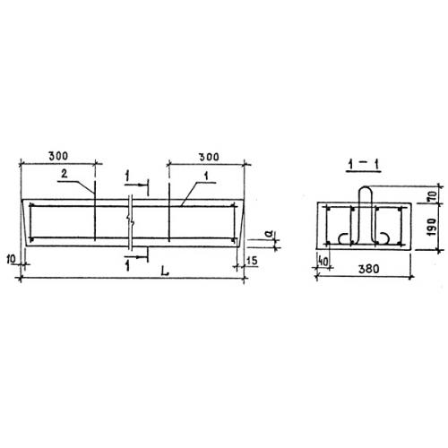
2ПР 15

Чертеж изделия:
Характеристики изделия:
ПараметрЗначение
длина1550 мм
ширина380 мм
высота190 мм
вес280 кг
серия1.138-10

2ПР 15 Перемычки плитные по серии 1.138-10.