ПК 63.24

Чертеж изделия:
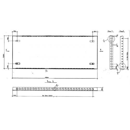
Характеристики изделия:
ПараметрЗначение
длина6280 мм
ширина2380 мм
высота220 мм
вес4650 кг
серия1.141.1 КЛ-3

ПК 63.24 Плита перекрытия с круглыми пустотами по серии 1.141.1 КЛ-3.