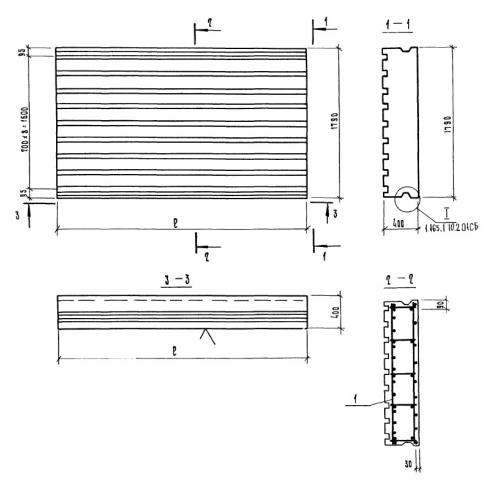
ПВ 48.18.40

Чертеж изделия:
Характеристики изделия:
ПараметрЗначение
длина4770 мм
ширина1790 мм
высота400 мм
вес2440 кг
серия1.165.1-10

ПВ 48.18.40 Вентилируемые панели покрытия по серии 1.165.1-10.