ПВ 54.12.40
Характеристики изделия:
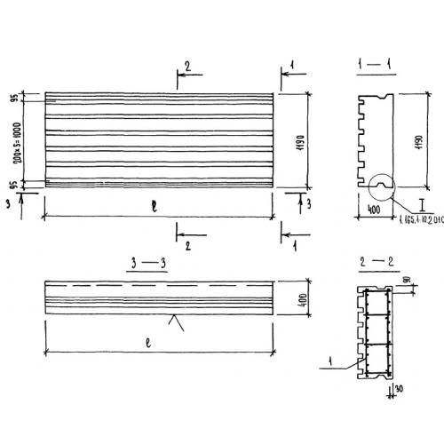
| Параметр | Значение |
|---|---|
| длина | 5370 мм |
| ширина | 1190 мм |
| высота | 400 мм |
| вес | 1810 кг |
| серия | 1.165.1-10 |
Цена:
Рассчитать стоимостьПВ 54.12.40 Вентилируемые панели покрытия по серии 1.165.1-10.
| Параметр | Значение |
|---|---|
| длина | 5370 мм |
| ширина | 1190 мм |
| высота | 400 мм |
| вес | 1810 кг |
| серия | 1.165.1-10 |
ПВ 54.12.40 Вентилируемые панели покрытия по серии 1.165.1-10.
