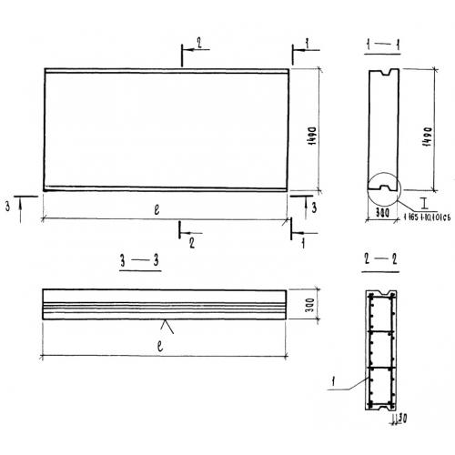
П 33.15.30

Чертеж изделия:
Характеристики изделия:
ПараметрЗначение
длина3270 мм
ширина1490 мм
высота300 мм
вес1070 кг
серия1.165.1-10

П 33.15.30 Панели покрытия по серии 1.165.1-10.