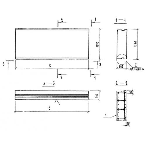
П 39.12.30

Чертеж изделия:
Характеристики изделия:
ПараметрЗначение
длина3870 мм
ширина1190 мм
высота300 мм
вес1010 кг
серия1.165.1-10

П 39.12.30 Панели покрытия по серии 1.165.1-10.