ПРП 63-15

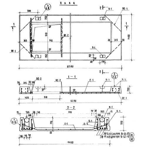
Чертеж изделия:
Характеристики изделия:
ПараметрЗначение
длина6280 мм
ширина1490 мм
высота220 мм
вес2620 кг
серия1.242-2

ПРП 63-15 Плиты ребристые по серии 1.242-2.