ПСТ 12.12.2.3

Чертеж изделия:
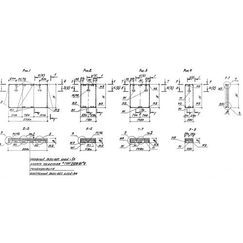
Характеристики изделия:
ПараметрЗначение
длина1180 мм
ширина230 мм
высота1180 мм
вес500 кг
серия1.432.1-21

ПСТ 12.12.2.3 Панели стеновые трехслойные по серии 1.432.1-21.