СПН 4 АV
| Параметр | Значение |
|---|---|
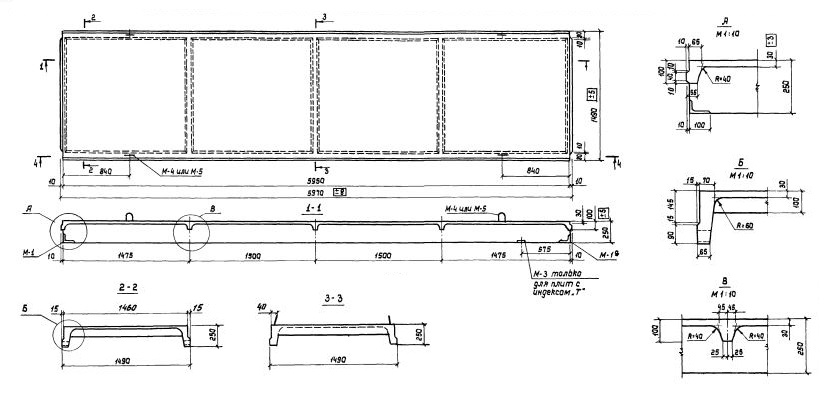
| длина | 5970 мм |
| ширина | 1490 мм |
| высота | 250 мм |
| масса | 1200 кг |
| нормативный документ | Серия 1.865-1 |
Серия 1.865-1
Плита ребристая СПН 4 АV представляет собой железобетонную прямоугольную конструкцию с продольными ребрами. Ребра плиты рассчитаны как свободно опертые однопролетные балки. Изделия могут выпускаться как со сплошной полкой, так и с квадратными отверстиями в крайнем поле плиты для пропуска вентиляционных шахт. Предназначены данные строительные элементы для покрытий производственных зданий сельского хозяйства с несущими конструкциями (фермы, балки и др.), расположенными с шагом шесть метров.
Маркировка
В соответствии с рабочими чертежами каждому железобетонному изделию присваиваются марки, которые состоят из буквенных и цифровых индексов. Маркировка плиты СПН 4 АV расшифровывается следующим образом:
1. СПН – предварительно напряженная ребристая плита,
2. 4 – номинальный пролет (дм),
3. АV – класс напрягаемой арматуры.