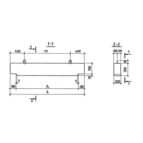
Б 30

Чертеж изделия:
Характеристики изделия:
ПараметрЗначение
длина3360 мм
ширина200 мм
высота350 мм
масса580 кг
нормативный документСерия 3.006.1-3/83

Б 30 Балки тоннелей Серия 3.006.1-3/83.