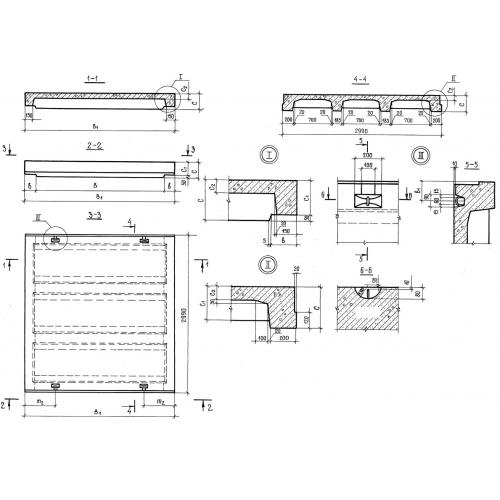
ПТ 30

Чертеж изделия:
Характеристики изделия:
ПараметрЗначение
длина2990 мм
ширина3360 мм
высота260 мм
масса3480 кг
нормативный документСерия 3.006.1-3/83

ПТ 30  Плиты перекрытия тоннелей Серия 3.006.1-3/83.