К 20

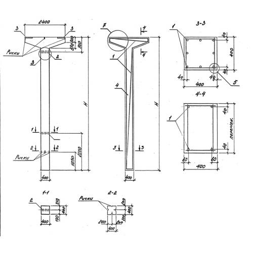
Чертеж изделия:
Характеристики изделия:
ПараметрЗначение
длина6800 мм
ширина2400 мм
высота2400 мм
масса3700 кг
нормативный документСерия 3.015-16.94

К 20  Колонны бетонные Серия 3.015-16.94.