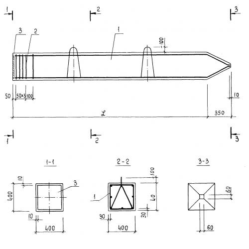
С 12-40

Чертеж изделия:
Характеристики изделия:
ПараметрЗначение
длина12350 мм
ширина400 мм
высота400 мм
вес4850 кг
серия3.015-5/86

С 12-40 Сваи прямоугольного сечения по серии 3.015-5/86.