ФМ 3
Характеристики изделия:
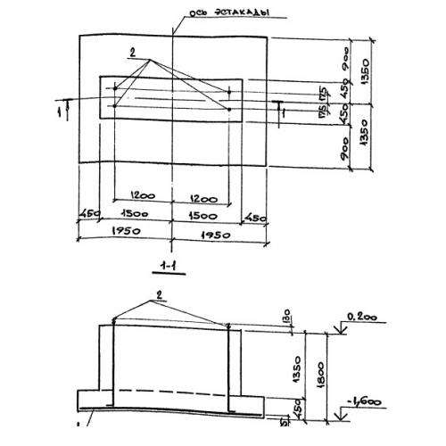
| Параметр | Значение |
|---|---|
| длина | 3900 мм |
| ширина | 2400 мм |
| высота | 1800 мм |
| вес | 2100 кг |
| серия | 3.015.2-15 |
Цена:
Рассчитать стоимостьФМ 3 Монолитные фундаменты по серии 3.015.2-15.
| Параметр | Значение |
|---|---|
| длина | 3900 мм |
| ширина | 2400 мм |
| высота | 1800 мм |
| вес | 2100 кг |
| серия | 3.015.2-15 |
ФМ 3 Монолитные фундаменты по серии 3.015.2-15.
