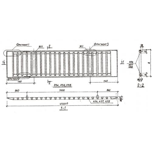
П 3 панель ограждения

Чертеж изделия:
Характеристики изделия:
ПараметрЗначение
длина4720 мм
ширина80 мм
высота1100 мм
масса470 кг
нормативный документСерия 3.017-1

П 3 Панели оград Серия 3.017-1.