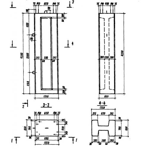
Ф 1

Чертеж изделия:
Характеристики изделия:
ПараметрЗначение
длина4200 мм
ширина1250 мм
высота850 мм
вес8400 кг
серия3.501.1-131

Ф 1 Блоки фундамента по серии 3.501.1-131.