С 60-30

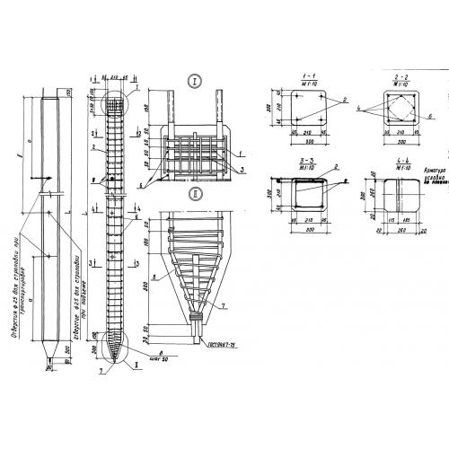
Чертеж изделия:
Характеристики изделия:
ПараметрЗначение
длина6000 мм
ширина300 мм
высота300 мм
вес1400 кг
серия3.501.1-153

С 60-30 Сваи с прямоугольным сечением по серии 3.501.1-153.