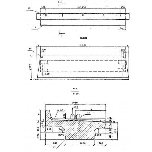
БП 1.77
Характеристики изделия:
| Параметр | Значение |
|---|---|
| длина | 7700 мм |
| ширина | 2060 мм |
| высота | 980 мм |
| вес | 16500 кг |
| серия | 3.501.1-175.93 |
Цена:
Рассчитать стоимостьБП 1.77 Плитные балки по серии 3.501.1-175.93.
| Параметр | Значение |
|---|---|
| длина | 7700 мм |
| ширина | 2060 мм |
| высота | 980 мм |
| вес | 16500 кг |
| серия | 3.501.1-175.93 |
БП 1.77 Плитные балки по серии 3.501.1-175.93.
