ФЦ-6

Чертеж изделия:
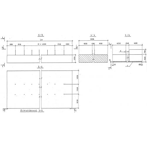
Характеристики изделия:
ПараметрЗначение
длина14620 мм
ширина5000 мм
высота1700 мм
масса182750 кг
нормативный документСерия 3.503-23

ФЦ-6 Фундаменты  Серия 3.503-23.