Р

Чертеж изделия:
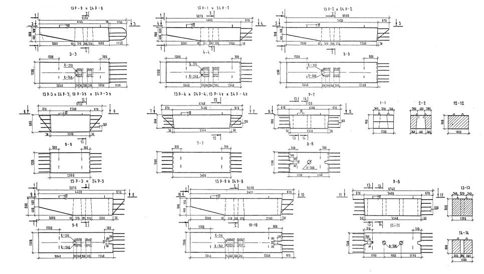
Характеристики изделия:
ПараметрЗначение
длина5070 мм
ширина1200 мм
высота800 мм
масса8600 кг
нормативный документСерия 3.503-23

Р  Блоки ригеля Серия 3.503-23.