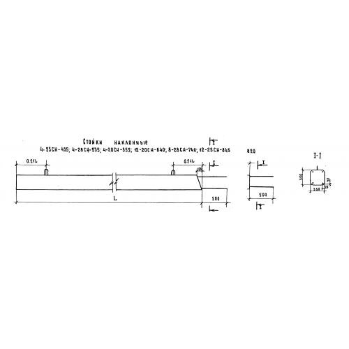
СН-470
Характеристики изделия:
| Параметр | Значение |
|---|---|
| длина | 5200 мм |
| ширина | 350 мм |
| высота | 350 мм |
| масса | 1500 кг |
| нормативный документ | Серия 3.503-23 |
Цена:
Рассчитать стоимостьСН-470 Стойки наклонные Серия 3.503-23.
| Параметр | Значение |
|---|---|
| длина | 5200 мм |
| ширина | 350 мм |
| высота | 350 мм |
| масса | 1500 кг |
| нормативный документ | Серия 3.503-23 |
СН-470 Стойки наклонные Серия 3.503-23.