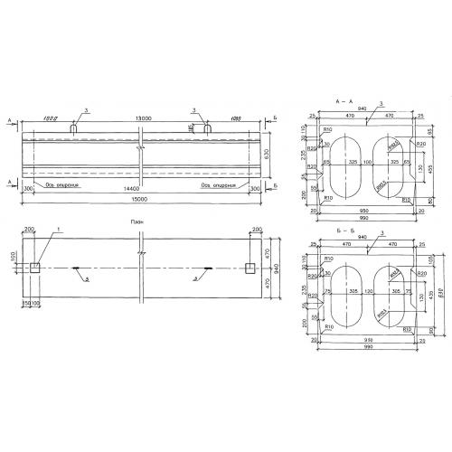
П 15

Чертеж изделия:
Характеристики изделия:
ПараметрЗначение
длина15000 мм
ширина990 мм
высота630 мм
вес12900 кг
серия3.503.1-108

П 15 Пустотные плиты по серии 3.503.1-108.