Г 15.30

Чертеж изделия:
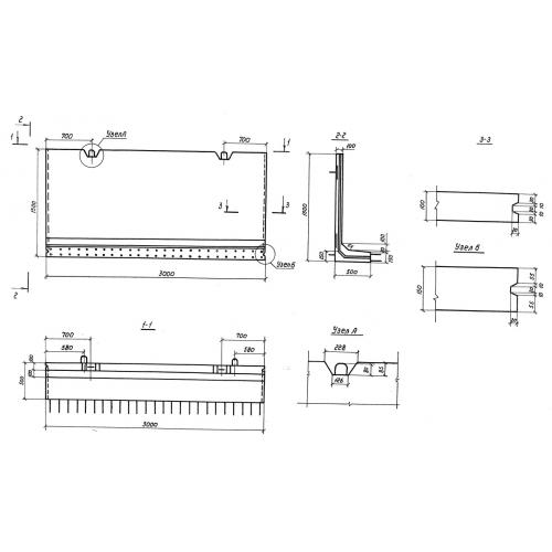
Характеристики изделия:
ПараметрЗначение
длинга3000 мм
ширина680 мм
высота1500 мм
вес1650 кг
серия3.820.1-39

Г 15.30 Г-образные конструкции многоцелевого нзначения по серии 3.820.1-39.