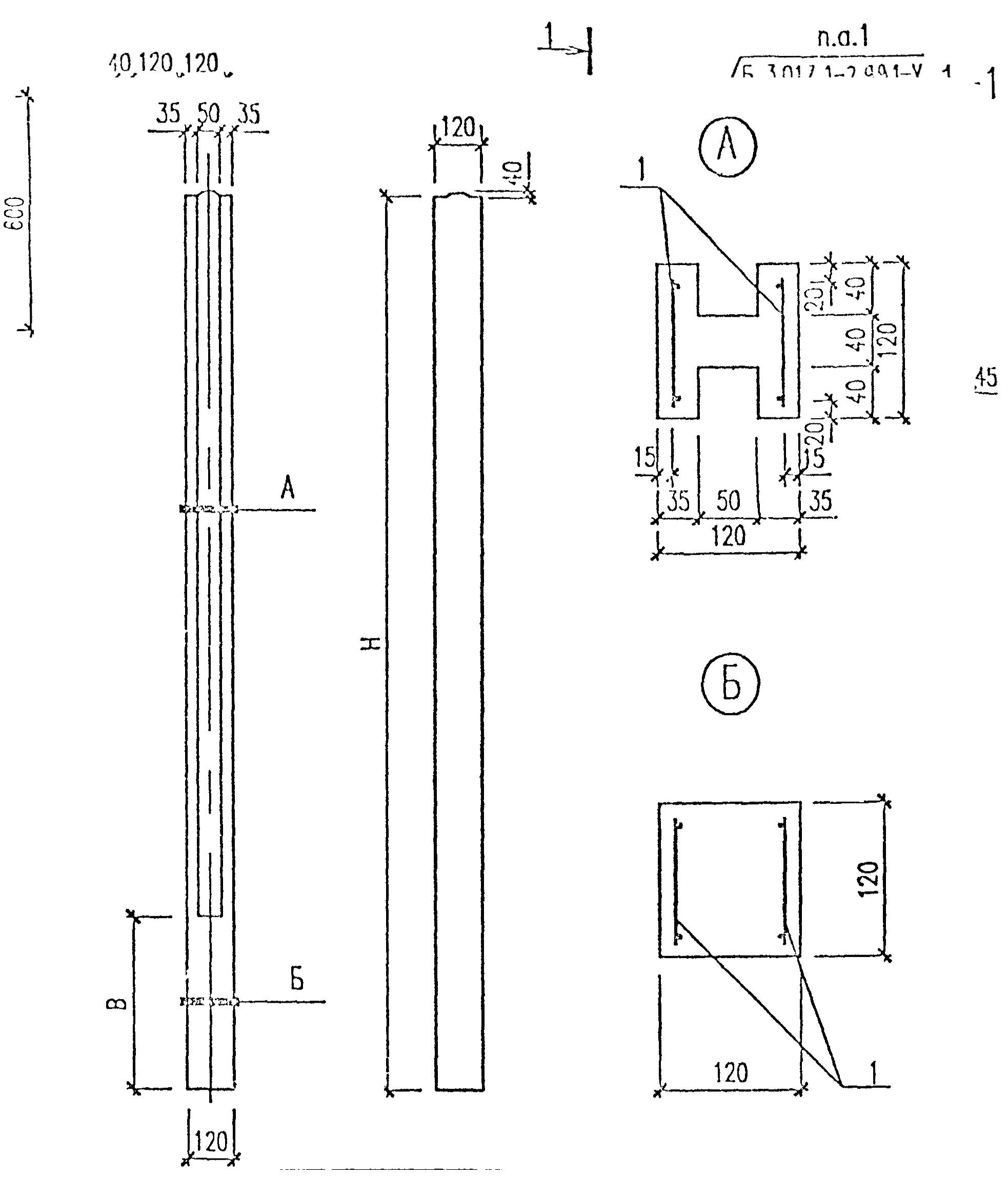
С 280.12-М

Чертеж изделия:
Характеристики изделия:
ПараметрЗначение
Длина L120 мм
Ширина В120 мм
Высота Н2790 мм
Вес82 кг
СерияБ3.017.1-2.99
Норма погрузки на машину (20тн)240 шт
Вагонная норма погрузки-

Столбы ограды С 280.12-М применяются совместно с панелями ограды, изготовленными по серии Б3.017.1-2.99.