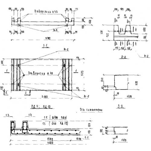
ПД 10 плиты днища
Характеристики изделия:
| Параметр | Значение |
|---|---|
| длина | 3180 мм |
| ширина | 1470 мм |
| высота | 300 мм |
| масса | 1500 кг |
| нормативный документ | Серия ИС 01-04 |
Цена:
Рассчитать стоимостьПД 10 Плиты днища сплошные, состоящие из сборных элементов, по Серии ИС 01-04.
