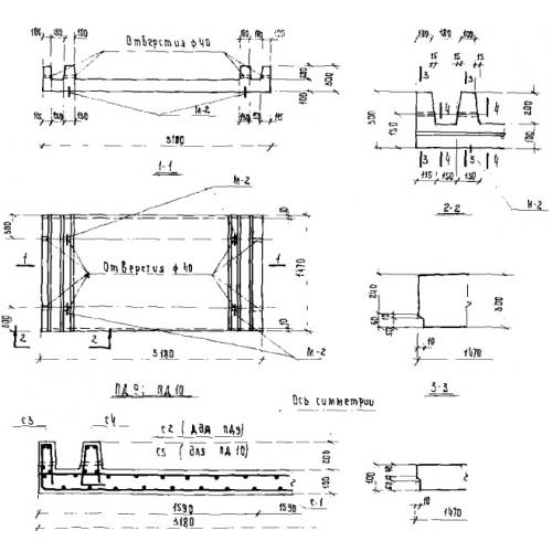
ПД 9 плиты днища

Чертеж изделия:
Характеристики изделия:
ПараметрЗначение
длина3180 мм
ширина3180 мм
высота300 мм
масса1500 кг
нормативный документСерия ИС 01-04

ПД 9 Плиты днища сплошные, состоящие из сборных элементов, по Серии ИС 01-04.