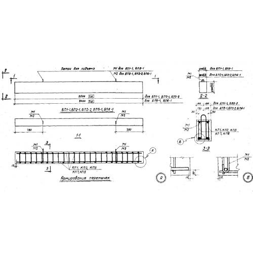
БП 6

Чертеж изделия:
Характеристики изделия:
ПараметрЗначение
длина5000 мм
ширина250 мм
высота290 мм
масса900 кг
нормативный документСерия КЭ 01-58

БП 6  Балочные перемычки по Серии КЭ 01-58.