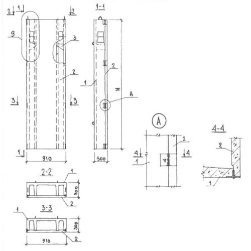
ВБ 9-30 вентблоки

Чертеж изделия:
Характеристики изделия:
ПараметрЗначение
длина2780 мм
ширина910 мм
высота300 мм
масса936 кг
нормативный документСерия КУБ 2.5

ВБ 9-30  Вентиляционные блоки Серия КУБ 2.5.