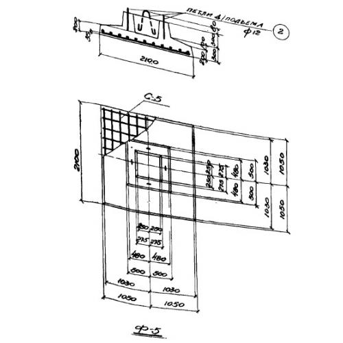
Ф

Чертеж изделия:
Характеристики изделия:
ПараметрЗначение
длина2100 мм
ширина2100 мм
высота600 мм
вес3310 кг
серияОФ 01-01

Ф Фундамент по серии ОФ 01-01.