ПНТП

Чертеж изделия:
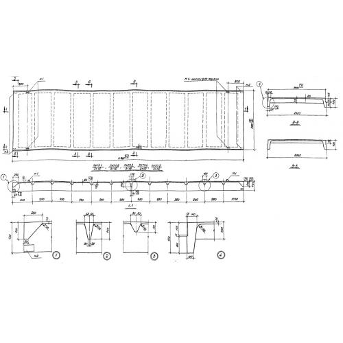
Характеристики изделия:
ПараметрЗначение
длина11960 мм
ширина2980 мм
высота450 мм
вес6800 кг
серияПК 01-100/62

ПНТП Плиты ребристые по серииПК 01-100/62.