МЖ 1

Чертеж изделия:
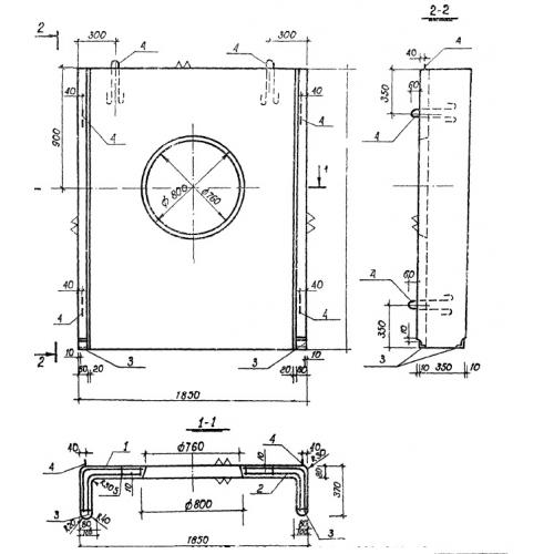
Характеристики изделия:
ПараметрЗначение
длина1850 мм
ширина370 мм
высота2200 мм
вес1000 кг
серияТП 310-4-1

МЖ 1 Малые железобетонные архитектурные формы по проекту ТП 310-4-1.