Ф
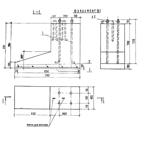
Характеристики изделия:
| Параметр | Значение |
|---|---|
| длина | 1100 мм |
| ширина | 400 мм |
| высота | 800 мм |
| вес | 530 кг |
| серия | ТП 320-55 |
Цена:
Рассчитать стоимостьФ Фундаменты под ограждения. Малые архитектурные формы и элементы благоустройства улиц, дорог, площадей по серии ТП 320-55.
